Terreno Urbano com 444 m2 projeto de Arquitetura Aprovado na Urbanização Quinta da Cegonha em Santo Estevão

89 900€

  • Útil: 444m2
  • Bruta: 444m2
  • C.E.: A+
  • Ref: 55922-MCCT61815

Localização

Santarém, Benavente, Santo Estevão, Centro

Descrição

Terreno Urbano com 444 m2 projeto de Arquitetura Aprovado na Urbanização Quinta da Cegonha em Santo Estevão lote nº 67.

Venha conhecer a pacata vila ribatejana e receba um ambiente que respira bom gosto, qualidade e tranquilidade, local certo e ideal para construir a sua casa de sonho, porque a sua Família merece.

Acessos facilitados, a 36 km do Montijo e Ponte Vasco da Gama, 60 Km do Aeroporto e da Grande Lisboa e a 65 km de Santarém.

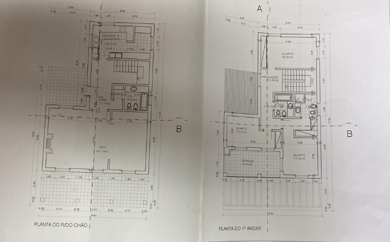
Lote com 453 m2, para construção de Moradia com 2 pisos, estando aprovado, Moradia Modelo E .

Modelo E
- T2 com 185 m2 área útil + 30 m2 área dependente
- T2 com 176 m2 área útil + 30 m2 área dependente
- T3 com 198 m2 área útil + 30 m2 área dependente


Grande oportunidade de negócio..

Antecipe-se a outros possíveis interessados!..

Agende já a sua visita.

Através da nossa equipa de especialistas intermediários de crédito autorizados pelo BP 0006202, acompanhamos o processo de financiamento de início ao fim!

Divisões

Plantas

Nome do piso: Piso 0

Divisão Área Nota
Terreno 444.00m2